浩辰CAD给排水2023官方版

浩辰CAD给排水2023官方版

官方

系统:Android

日期:2026-01-18

类别:电脑软件

版本:

  • 详情
  • 相关
  • 评论

    浩辰CAD给排水2023官方版是一款专为排水系统设计的CAD软件,功能强大且实用。它不仅支持二维转三维,还能一键生成成品图,让设计师从不同角度查看效果,省时又高效。软件内置了丰富的管线布置、标注和排水原理等功能,极大降低了工作强度,提高了效率。

    教程部分详细介绍了几个实用功能:比如转条件图可以快速将建筑底图转换为给排水设计图;选择管线支持批量操作,灵活方便;绘制套管和最远路径等工具也大大简化了设计流程。软件还提供自动生成图纸、喷淋系统布置、虹吸雨水计算等功能,并附带大量辅助设计资料,如水泵房和安装节点图,堪称设计师的得力助手。

    总的来说,这款软件非常适合建筑和给排水领域的专业人士使用,能够显著提升工作效率,减少重复劳动。如果你从事相关工作,真的值得一试!

    浩辰CAD给排水2023官方版是一款非常好用的CAD平台软件,其该版本是专为排水系统所服务的,相对来说,其软件内功能偏向于排水绘图等。同时,软件内的功能也是十分强大的,利用该软件你可以更好的对构造图的制作和设计,即它提供二维一键转三维功能,让你只需要绘制好二维屏幕的,就可以看到成品图,从而更好的从不同角度上去挑战,节约了用户不少时间。而且对于构图上的帮助也是不少的,即管线的布置和标注,还是排水的原理等,它都可以帮助你快速完成。极大的减少了工作强度,提升了工作效率。有需要的用户快来下载体验一下吧!

    浩辰CAD给排水2023官方版部分功能操作教程

    1、转条件图:可以将建筑底图转化为符合给排水设计的底图。

    2、选择管线:可以对某个系统的管线及立管进行批量选择。可以对某个系统进行仅选择立管或者仅选择横管、也可以选择立管+横管(三种模式任选其一)。

    3、绘制套管:用鼠标或右键执行本命令后,命令行提示:请选择穿墙管线[墙体插入套管(W)]:当选择管线以后,套管插入示意图如下

    4、最远路径:可以查找喷淋系统最不利点喷头,根据命令行提示选择供水端管线,软件将最远路径中管线和最不利点喷头选中。

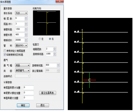
    5、排水原理:用户运行室内菜单中的【系统绘图】-【排水原理】命令,可以对排水原理图的具体参数进行设置,点击确定即可生成排水原理图。

    软件特色

    1、自动生成图纸:根据绘制的平面图,软件能够自动生成系统图或原理图,并进行相关计算,标注管径等信息。

    2、喷淋系统布置:提供多种喷淋系统布置方案,自动调整喷头间距,符合规范要求。

    3、虹吸雨水计算:包含布雨水斗、管道连接、虹吸雨水计算等功能,自动完成整个系统的水力计算和计算书输出。

    4、大量辅助设计资料:包含水泵房、水箱、安装节点及设计说明图纸等,为设计工作提供有力支持。

    展开内容

    应用信息

    • 包名:
    • MD5:
    • 需要网络

    评分及评论

    4.5满分5.0分

    点击星星用来评分

    评论需审核后才能显示
    同类排行