斯维尔安装算量 v15.3.6.1官方版

斯维尔安装算量 v15.3.6.1官方版

官方

系统:Android

日期:2026-01-22

类别:电脑软件

版本:v15.3.6.1官方版

  • 详情
  • 相关
  • 评论

    这篇文章主要介绍了斯维尔安装算量软件的功能和优势。这款软件基于AutoCAD平台,采用“虚拟施工”的方式快速建模,能够高效解决工程中的算量问题。它通过智能化的方式统计设备、管线等数据,避免了传统手工计算的繁琐和容易出错的问题。软件还支持一键碰撞检测,帮助设计人员提前发现并解决问题,同时生成准确的三维模型指导施工。

    斯维尔安装算量覆盖了给排水、电气、暖通等多个专业领域,在消防、通风和电气工程中都有出色表现。它的功能非常强大,比如智能识别系统图、自动布置附件以及与Excel表格联动等,极大提升了工作效率。对于经常需要处理复杂工程的造价人员来说,这款软件真的节省时间又省心。

    总的来说,斯维尔安装算量凭借其高效、精准和智能化的特点,成为建设工程中不可或缺的工具,特别适合那些需要频繁调整和优化设计的项目。对新手来说也挺友好,学习成本低,操作起来也很方便。

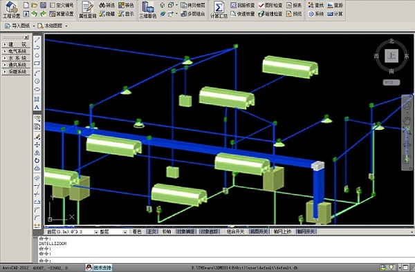
    斯维尔安装算量是一款成熟的安装工程量图形化计算软件,以AutoCAD为平台,采用“虚拟施工”的方式进行三维建模。模型搭建速度之快,几乎完全超过造价人员想象,针对细节部分的精益求精,使其拥有超广的计算范围之广,专注领域的深耕细作,同步最新计算规则,超快的数据汇总,全面解决造价人员手工计算烦,错误多、调整乱、汇总繁、效率低、工作重等问题。

    正是由于其完善的架构,灵活的规则,以及超强的数据统筹和算力,因此斯维尔安装算量广泛用于建设工程招投标、施工、竣工阶段的安装工程算量计算。这将完美解决给排水、通风空调,电气、采暖等专业安装工程量计算需求。

    功能介绍

    1、建模思路简单,轻松快速算量

    斯维尔安装算量软件电算化建模思路为两点一线三维化,简称为“213”。软件通过设备识别,布置将始末端设备二维图转化为三维模型,管线通过智能提取规格型号、智能识别,自动计算长度与面积。

    2、水、电、暖通全专业计算之设备个数统计

    传统的手工算量,安装预算人员统计设备、部件、管道配件等都要从图纸中一个一个的点数,然后分类别统计于表格中,大型工程系统复杂程度可想而知,而且点数这种简单的机械劳动枯燥无味。斯维尔安装通过一键智能识别,可安装各专业设备构件转化过来,计算后区分型号、区分楼层、区分系统,统计形成报表。

    3、水、电、暖通全专业计算之管线智能汇总

    传统的手工算量,先要一段一段的在图纸上量取长度,然后使用计算器汇总,另外管道、风管等构件的不同计算项目,加上各种垂直管线,十分繁琐。例如:消防喷淋专业可以按管径对照表或危险等级一键转化;

    风管的展开面积根据长度自动折合汇总,同时,软件内置开放的本地化计算规则模板,可根据实际需要调整管线、附件的计算方法。风管弯头、三通、四通这个面积可按中心线算也可按交线折合面积计算;

    软件通过读系统图功能,可以快速的将工程中所有的配电箱系统一次性全部读取,读取的配电箱回路信息可以拷贝到其他工程使用,不需要重新识别。

    4、水、电、暖通全专业计算之附件自动布置

    斯维尔安装算量软件根据内置的规则,一键自动布置,(请注意:是一键自动布置),即可快速完成工程量的计算。例如:管道沟槽卡箍自动布置、接线盒自动布置、管道支吊架自动布置等,数量精确,施工可参照性强。

    5、一键碰撞检测,虚拟模型指导施工

    将安装算量模型中各专业图形进行组合,一键检查不同专业管道碰撞现象,还可将土建模型导入安装模型中进行碰撞检测,避免不当的设计造成施工损失,计算准确度高,三维模型最终与实际施工模型达到一致,保证工程量精确的同时还能指导后期施工。

    6、报表功能强大,核、对、出量随心所欲

    软件跟EXCEL表格联动,相互可以导入导出,新增多款接近手算的报表,让对量的表格计算式准确易懂,反查对应计算的图元,核算对量更容易,一键框选出量,让出量随心所欲。

    应用领域

    1、消防专业

    喷淋管径:一键调整管道管径;

    读立系统图:一键读取立管系统;

    沟槽卡箍设置:一键完成沟槽卡箍工程量计算;

    法兰自动布置:一键自动布置管道法兰。

    2、通风专业

    风管回路识别:智能识别风管回路;

    统梁调整:解决管之间的碰撞问题;

    自动成软接头:一键批量生成软接头;

    管连风口:一键连接管道和风口;

    风管壁厚:一输调整风管壁厚。

    3、电气专业

    回路识别:一次性快速识别电气系统;

    跨层桥架配线:高效解决桥架及管线跨层问题;

    虚拟桥架:解决一根线代表多个回路的问题;

    读系统图:快速读取系统中管线材质,管线根数及回路信息;

    识别材料表:一次性快速识别全楼层设备。

    更新日志

    v15.3.6.1版本

    1.升级图纸管理功能。

    2.调整定额库《四川安装工程2015计价定额》和《四川省通用安装工程(2020)》电缆的总长度计算方法:乘以系数1.025。

    3.修复回路核查中切换树节点后,表格总量和分量不对应的问题。

    4.修复已知的缺陷。

    展开内容

    应用信息

    • 包名:
    • MD5:
    • 需要网络

    评分及评论

    4.5满分5.0分

    点击星星用来评分

    评论需审核后才能显示
    同类排行